OAKWOOD HOMES-FLETCHER

15 Eagle Drive Modular

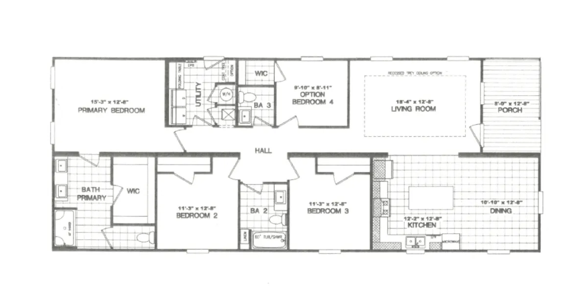
  • RIC256471NCABM

  • 4 beds

     • 2 baths

  • 1,706 sq. ft.

15 Eagle Drive Modular home image
15 Eagle Drive Modular home image
15 Eagle Drive Modular home image
15 Eagle Drive Modularfloorplan image
(828) 684-1550

Monday - Friday: 9am to 5pm

Saturday: 9am to 5pm

Sunday: Closed

OAKWOOD HOMES-FLETCHER

5250 HENDERSONVILLE HIGHWAY
FLETCHER, NC 28732

Our home building facilities invest in continuous product and process improvements. Plans, dimensions, features, materials, specifications, and availability are subject to change without notice or obligation. Renderings and floor plans are representative likenesses of our homes and many differ from actual homes. We invite you to tour a Home Center near you and inspect the highest value in quality housing available or call (828) 684-1550 to speak with a Home Consultant. ©2025, CMH. All rights reserved.