15 Eagle Drive Modular
Overview
Features
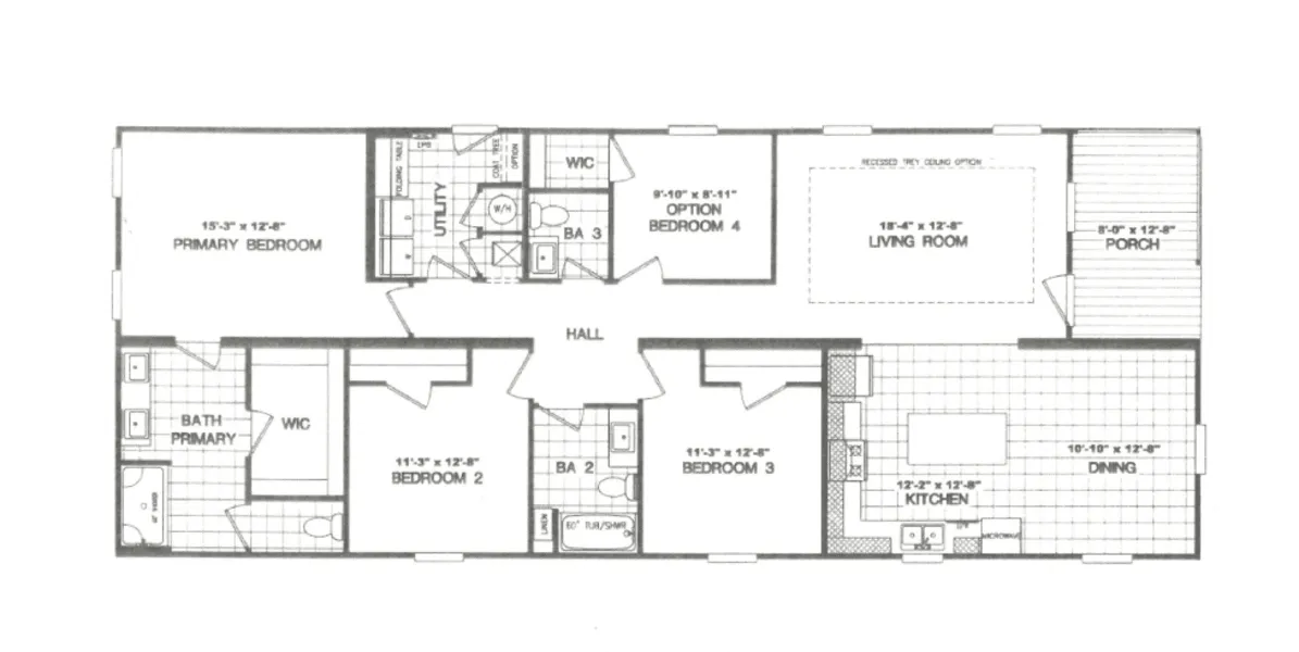
Floor Plan
- IN STOCK
- SALE
15 Eagle Drive Modular
4 beds
2 baths
1,706 sq. ft.
0.67 acres
† Images may show options not included in base price
Overview
-FOR SALE: Beautiful 4 Bed / 2.5 Bath Modular Home -1,904 Sq Ft | 0.67 Acres | $427,000 This stunning modular home offers the perfect blend of space, style, and country charm! Featuring 4 spacious bedrooms and 2.5 bathrooms, this 1,904 sq ft home sits on just over half an acre—ideal for enjoying outdoor living, entertaining, or simply relaxing in your own private space. - Open-concept living - Beautiful kitchen with modern finishes - Large primary suite with walk-in closet and en-suite bath - Energy-efficient construction - Peaceful setting with room to grow Enjoy all the benefits of modular construction—built with precision, quality materials, and long-term durability in mind. - Don’t miss your chance to own this incredible home for $427,000! - Call today to schedule your private showing!
Location
15 Eagle Drive, Hendersonville, NC 28792
Features
Move-In Ready
Floor Plan

Homes built with you in mind
We accept trades!
Find a new home you love? Contact us for more information about our trade-in requirements and to schedule your free trade evaluation.
Learn MoreLearn More About this Property
Oakwood Homes of Fletcher
- Brokerage Phone: (828) 684-1550
- Listing Agent Email: hc192@claytonhomes.con
Copyright © 2025 Knoxville Area Association of Realtors ®. All rights reserved. All information provided by the listing agent/broker is deemed reliable but is not guaranteed and should be independently verified.
Take the next step
† Sales price does not include other costs such as taxes, title fees, insurance premiums, filing or recording fees, improvements to the land or home, community or homeowner association fees, or any other items not shown on your Sales Agreement, Retailer Closing Agreement and related documents (your SA/RCA). If you purchase a home, your SA/RCA will show the details of your purchase. Artists’ renderings of homes are only representations and actual home may vary. Floor plan dimensions are approximate and based on length and width measurements from exterior wall to exterior wall. We invest in continuous product and process improvement. All home series, floor plans, specifications, dimensions, features, materials, and availability shown on this website are subject to change.




























